Skip til hoved indholdet MinSide MinSide

Jellingvej, 21 D, 7100 Vejle

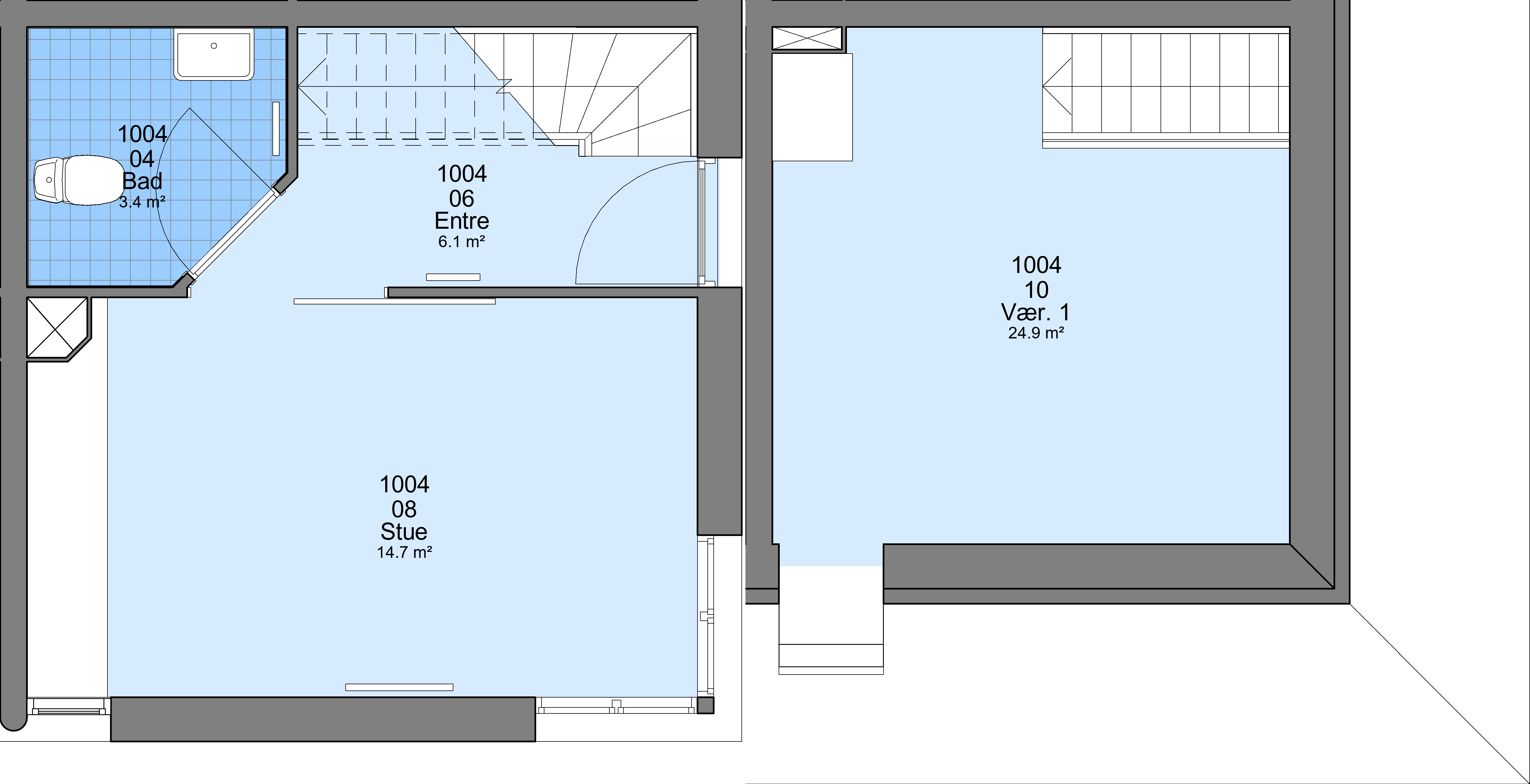
Se plantegning

Se på kort

ØsterBO har 215 ungdomsboliger i Vejle centrum. De er beliggende på Dæmningen, Vissingsgade, Ydunsgade, Ågåde, Thorsgade, Jacob Gades Stræde, Horsensvej, Jellingvej og Grejsdalsvej.
Boligerne er forbeholdt unge under uddannelse, men i perioder, hvor antallet af ungdomsboliger er større end antallet af studerende, er der mulighed for at leje en ungdomsbolig, selv om du ikke er studerende. For mere info, kontakt ØsterBO.

Ventetiden til afdelingen er mellem 0 og 20 måneder.

Faciliteter

Husdyr

Nej

Køleskab
Ja

Der er kombineret Køle- Fryseskab i lejemålet

Elevator

Nej

Vaskeri
Ja

Pengeløst fællesvaskeri, opkræves via huslejen.

Emhætte

Nej

Komfur

Nej

TV/internet stik
Ja

Der forefindes stik til internet og tv i lejemålet.

Området

Indkøbsmuligheder

meter

Park & natur

meter

Træning

meter

Offentlig transport

meter

Skole/uddanelse

meter

Institution

meter

ØsterBO

Treschowsgade 4
7100 Vejle
CVR nr. 14905618 - EAN nr. 5790002051616

Telefon: +45 79 43 25 00
kundecenter@osterbo.dk

Webstedslinks